【Punggol】 Piermont Grand EC (D19)

  • Piermont Grand_Hero Building
  • Piermont Grand_Cantilvered Gym
  • Piermont Grand_50m Lap Pool
  • arrival
  • Piermont Grand_Hero Building
  • Piermont Grand_Cantilvered Gym
  • Piermont Grand_50m Lap Pool
  • arrival

  Project Details

22 Sumang Walk (Punggol), D19 - Punggol / Sengkang / Hougang / Kovan / Serangoon / Lor Ah Soo, 828677, NORTH-EAST, Outside of Central Region


 

AT A GLANCE:

 

 

PIERMONT GRAND EC

(D19 榜鹅

【North East Condo】

 

Pricing From: 

 100% SOLD OUT 

 

- Bed - Bath
- Sqft $- psf

99 Yrs Leasehold 820 Units TOP Feb 2023  Height 18 Storey 3 Bed 4 Bed 5 Bed

 

 

 

ONE and ONLY Premium EC in 2019 at one of the BEST strategic location in SG! 

Extraordinary Convenience for you everyday! Punggol MRT/Bus Interchange is just 6 to 8 Mins WALK away! 

Enjoy the ultimate Transformation and anticipated Future Developers of Punggol announced in the Masterplan2019! 

- Namely, Punggol Digital District, Local University (Singapore Institute of Technology) and Punggol Regional Hub!  

Within 2km, Mee Toh School (Top 9 Primary School in SG)! 

Piermont Grand
Piermont GrandPunggol - North-East Executive Condo

 

 

 

PROJECT DETAILS

Price List
 

PRESS LAYOUT TYPES TO SEE FLOORPLAN
   LAYOUT(S)

Size
(Sqft)

PSF
($)

Price
From

 

 3 Bed

3 Bedroom 840 Sqft

840  SOLD SOLD OUT
3 Bed Deluxe

3 Bedroom Deluxe 990 Sqft

990  SOLD OUT SOLD OUT
3 Bed Deluxe PH

3 Bedroom Deluxe Penthouse 1119 Sqft

1119 SOLD OUT SOLD OUT
3 Bed Penthouse

3 Bedroom Penthouse 990 Sqft

990 SOLD OUT SOLD OUT
3 Bed Premium

3 Bedroom Premium 1012 Sqft

 1012  SOLD  SOLD OUT
3 Bed Premium PH

3 Bedroom Premium Penthouse 1206 Sqft

 1206  SOLD SOLD OUT
3 Bed Superior

3 Bedroom Superior 969 Sqft

 969 SOLD  SOLD OUT
3 Bed Superior PH

3 Bedroom Superior Penthouse 1184 Sqft

 1184 SOLD SOLD OUT
4 Bed Premium

4 Bedroom Premium 1356 Sqft

 1356 SOLD SOLD OUT
4 Bed Premium PH

4 Bedroom Premium Penthouse 1528 Sqft

 1528 SOLD SOLD OUT
5 Bed Premium

5 Bedroom Premium Penthouse 1432 Sqft

 1432 SOLD SOLD OUT
5 Bed Premium PH

5 Bedroom Premium Penthouse 1668 Sqft

 1668 SOLD SOLD OUT

 

 

*All Pricing Are Subjected to Developer Changes & Availability. Contact Us Now.

 

Project Specification

 

Project Name PIERMONT GRAND


Developer:


City Developments Limited and TID Residential Pte Ltd


Tenure:

99 Yrs

TOP:

Feb 2023

Location:

22 Sumang Walk, Singapore 8286779

Number of Units:

820 Units

Building Height:

18 Storey

 No of Facilities:

32

 

Project Layouts

 

Layout Types 

Sqft

Units
3 Bedroom 840 - 1012 232
3 Bedroom (D) 947 - 990 72
3 Bedroom Penthouse (D) 1119 - 1163 5
3 Bedroom Penthouse 990 - 1173 15
3 Bedroom (P) 1184 - 1216 101
3 Bedroom Penthouse (P) 1206 - 1572 7
3 Bedroom Superior 969 - 1044 102
3 Bedroom Superior Penthouse  1066 - 1184 7
4 Bedroom (P) 1356 - 1410 178
4 Bedroom Penthouse (P) 1561 - 1528 14
5 Bedroom (P) 1432 - 1561 81
5 Bedroom Penthouse (P) 1668 - 1701 6

 

(D) = Deluxe  
(P) = Premium
 

  

 

 

LOCATION DETAILS

Location Map
District Map
 

  

PIERMONT GRAND EC at District 19

Singapore District Map

 

district_names

 

  

 

 

Why Buyers buy here?

OPEN TAB FOR DETAILS

 

1. Less than 7 Mins Walk to Punggol MRT

  

2 Mins Walk to Sumang LRT

 

2 LRT Station or Less than 7 Mins Walk to Punggol MRT

 

2 LRT Station or Less than 8 Mins Walk to Punggol Bus Interchange

  

2. Well-Connected to Expressways

 

Just 3 Mins Drive to TPE Expressway  

 

  • Only 3 Minutes Drive to TPE where it connects to many other Expressways to get around the island conveniently!

  

3. Within 2km, Mee Toh School is within 5 Bus Stops Away!

 

  • Within 1km, Punggol View Primary School and Punggol Green Primary School which is 3 Bus Stops away!

 

Ranked Top 9 out of 185 Primary Schools   

 

  • Within 2km, short travel to Mee Toh School (Top 9) which is only 5 Bus Stops away!

 

  • Other Education Institution nearby - Edgefield Primary School, Oasis Primary School, Compassvale Primary School, Springdale Primary School, Rivervale Primary School and Horizon Primary School.

 

4. Useful Amenities nearby

 

Brisk walk to Punggol Point Park

 

 

Brisk Walk to Coney Island

 

4 Bus Stops to Punggol End Settlement

 

 

7 Bus Stops to Punggol Hai Bin

 

 

5 Bus Stops to Upcoming Punggol 21 Community Club!

 

5. Mega Malls, Retail and Shopping

  

6 Min Walk to Punggol MRT - Waterway Point (with Cinema)

 

Free Shuttle Bus from Punggol MRT to Punggol Marina Country Club

 

3 Bus Stops to Punggol Safra

 

1 MRT Station to Sengkang MRT - Compass One Mall

  

  • Get Across the Road to HDB Estate Economical Shops at Block 322

 

  • Travel further to Hougang Mall at Hougang MRT or NEX mega Mall at Serangoon MRT!

 

6. Regional Centre of the North-East, Masterplan with exciting Growth

 

Masterplan2019 - Punggol Digital District (Creating 28,000 Job Opportunities)

 

Masterplan2019 - Punggol Digital District (JTC and SIT)

 

Masterplan2019 - Punggol Coast MRT (Convenience of accessing to JTC or SIT)

 

Masterplan2019 - Punggol Regional Hub (Large Hawker Centre and Library)

 

  • Masterplan2019 focuses mainly on the North-east where Punggol will be a Regional Hub and Sengkang will be revamped with a Brand New Grand Mall. Both locations are close proximity to Piermont Grand EC!

 

Landmark of Sengkang (Integrated Development with Mall operated by CapitaLand)

 

7. Premium Executive Condominium with High Quality Exterior and Interior Finishings by CDL

 

 

Cantilevered Indoor Gym 

 

Olympic-Size Pool and Glass Curtain Walls all around the facade

 

Extravagant Arrival Lobby (Comparable to Actual Private Condo)

 

  • You could not tell the difference between an Executive Condominium and actual Private Condominium anymore and this is your Major Advantage as it is at least 20% cheaper! Giving you a high margin of opportunity for your future Capital Appreciation!

 

8. Reputable Developer - Joint Venture of City Development Limited and TID Private Limited

 

Joint Venture of City Development Limited and TID Private Limited

News Article of the Joint Venture of City Development Limited and TID Private Limited

City Development Limited's Biography

 

TID Private Limited's Biography

  

 

 

 

AMENITIES

MRT | School | Supermarket | Mall

   

MRT
 

1KM
MRT  1KM

  

 

PUNGGOL MRT (650M AWAY)

 

 

 

East West Line (EWL)

 

North South Line (NSL)

 

North East Line (NEL) 

 

Circle Line (CCL)

 

Downtown Line (DTL)

 

Thomson-East Coast Line (TEL)

 

Jurong Region Line (JRL)

 

Cross Island Line (CRL)

  

School 1KM
1KM
School  1KM
  1. 1. PUNGGOL VIEW PRIMARY SCHOOL
    (933M AWAY)
  2. 2. PUNGGOL GREEN PRIMARY SCHOOL
    (975M AWAY)
School 2KM
2KM
School  2KM
  1. 1. MEE TOH SCHOOL  [TOP 9] 
    (1.91KM AWAY)
  2. 2. EDGEFIELD PRIMARY SCHOOL
    (1.56KM AWAY)
  3. 3. OASIS PRIMARY SCHOOL
    (1.62KM AWAY)
  4. 4. COMPASSVALE PRIMARY SCHOOL
    (1.75KM AWAY)
  5. 5. SPRINGDALE PRIMARY SCHOOL
    (1.85KM AWAY)
  6. 6. RIVERVALE PRIMARY SCHOOL
    (1.98KM AWAY)
  7. 7. HORIZON PRIMARY SCHOOL
    (2KM AWAY)

 

Supermarket / Mall
1KM
Supermarket & Mall  1KM
  • NTUC SUPERMARKET (150M AWAY) 
  • PRIME SUPERMARKET (300M AWAY)
  • NTUC SUPERMARKET (750M AWAY)

 

 

 

 

SITE PLAN

 

32 PREMIUM CONDO AMENITIES

 

 

  

FLOOR PLAN

( 25% DOWNPAYMENT | 75% BANK LOAN  |  MONTHLY INSTALLMENT )

  

3 Bedroom
3 Bedroom
Pricing From:  FULLY SOLD
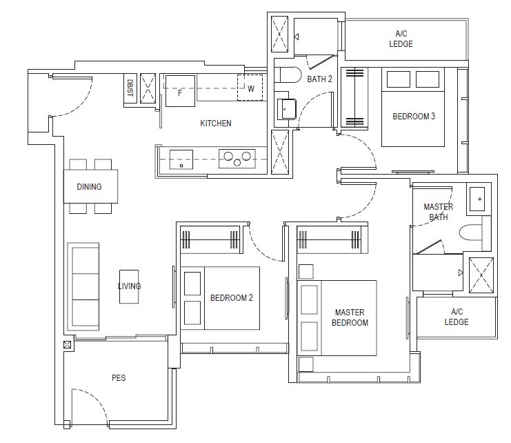
Type: A1a (3 Bedroom)   Size: 840 Sqft / 78 Sqm
25% Downpayment: $ -/  75% Bank Loan: $ -
30 Years Bank Loan @ 1.2% Interest  
Monthly Installment: $ -

 *All Pricing Are Subjected to Developer Changes & Availability. Contact Us Now.

  

A1a
840 Sqft

A1a-P
840 Sqft

A1b
872 Sqft

A1b-P
872 Sqft

 

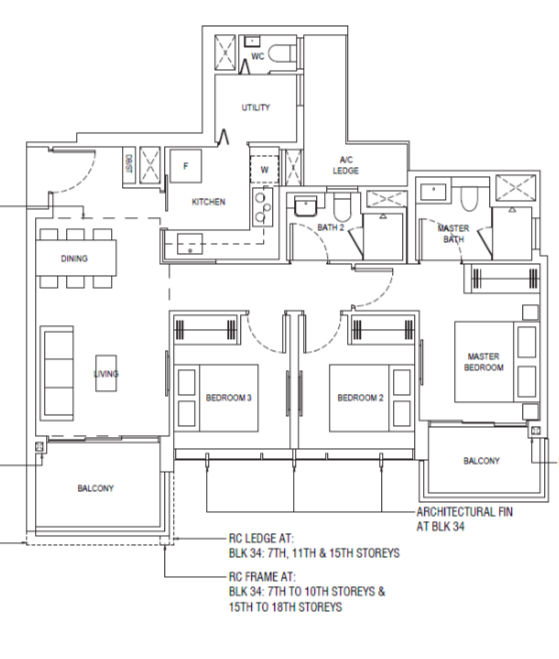
3 Bedroom (D)
3 Bedroom Deluxe
Pricing From:  FULLY SOLD
Type: A3a (3 Bedroom Deluxe)   Size: 990 Sqft / 92 Sqm
25% Downpayment: $   /  75% Bank Loan: 
30 Years Bank Loan @ 1.2% Interest  
Monthly Installment: $ 

 *All Pricing Are Subjected to Developer Changes & Availability. Contact Us Now.

 

A3a
990 Sqft

 

 

3 Bedroom Penthouse (D)
3 Bedroom Deluxe Penthouse
Pricing From:  FULLY SOLD
Type: A3a-PH (3 Bedroom Deluxe Penthouse)   Size: 1119 Sqft / 104 Sqm
25% Downpayment:   /  75% Bank Loan: $  
30 Years Bank Loan @ 1.2% Interest  
Monthly Installment: $ 

 *All Pricing Are Subjected to Developer Changes & Availability. Contact Us Now.

 

A3a-PH
1119 Sqft

 

 

 

 

3 Bedroom Penthouse
3 Bedroom Penthouse
Pricing From:  SOLD OUT
Type: A1a-PH (3 Bedroom PH)   Size: 990 Sqft / 78 Sqm
25% Downpayment: $  /  75% Bank Loan: 
30 Years Bank Loan @ 1.2% Interest  
Monthly Installment: $ 

 *All Pricing Are Subjected to Developer Changes & Availability. Contact Us Now.

A1a-PH
990 Sqft

[/super_tab]
A1b-PH
1023 Sqft

 

[/super_tab]
A1c-PH
1173 Sqft

 

 

3 Bedroom (P)
3 Bedroom Premium
Pricing From:  FULLY SOLD
Type: A4a (3 Bedroom Premium)   Size: 1012 Sqft / 94 Sqm
25% Downpayment:   /  75% Bank Loan: 
30 Years Bank Loan @ 1.6% Interest  
Monthly Installment: $ 

 *All Pricing Are Subjected to Developer Changes & Availability. Contact Us Now.

 

A4a
1012 Sqft

 

 

3 Bedroom Penthouse (P)
3 Bedroom Premium Penthouse
Pricing From:  FULLY SOLD
Type: A4b-PH (3 Bedroom Premium Penthouse)   Size: 1206 Sqft / 112 Sqm
25% Downpayment:   /  75% Bank Loan: 
30 Years Bank Loan @ 1.6% Interest  
Monthly Installment: $ 

 *All Pricing Are Subjected to Developer Changes & Availability. Contact Us Now.

 

A4b-PH
1206 Sqft

 

 
3 Bedroom (S)
3 Bedroom Superior
Pricing From:  SOLD OUT
Type: A2a (3 Bedroom Superior)   Size: 969 Sqft / 90 Sqm
25% Downpayment:   /  75% Bank Loan: 
30 Years Bank Loan @ 1.2% Interest  
Monthly Installment: $ 

 *All Pricing Are Subjected to Developer Changes & Availability. Contact Us Now.

 

A2a
969 Sqft

 

 

 
3 Bedroom Penthouse (S)
3 Bedroom Superior Penthouse
Pricing From:  FULLY SOLD
Type: A2a-PH (3 Bedroom Superior Penthouse)   Size: 1184 Sqft / 110 Sqm
25% Downpayment: $   /  75% Bank Loan: $
30 Years Bank Loan @ 1.2% Interest  
Monthly Installment: $ 

 *All Pricing Are Subjected to Developer Changes & Availability. Contact Us Now.

 

A2a-PH
1184 Sqft

 

 

4 Bedroom (P)
4 Bedroom Premium
Pricing From:  FULLY SOLD
Type: B2 (4 Bedroom Premium)   Size: 1356 Sqft / 126 Sqm
25% Downpayment: $ -/  75% Bank Loan: $ -
30 Years Bank Loan @ 1.2% Interest  
Monthly Installment: $ -

 *All Pricing Are Subjected to Developer Changes & Availability. Contact Us Now.

 

B2
1356 Sqft
B3
1367 Sqft

B4
1335 Sqft

B5
1367 Sqft

B2-PH
1561 Sqft

 

B3-PH
1572 Sqft

B3-P
1367 Sqft

 

 

4 Bedroom Penthouse (P)
4 Bedroom Premium Penthouse
Pricing From:  FULLY SOLD
Type: B4-PH (4 Bedroom Premium Penthouse)   Size: 1528 Sqft / 142 Sqm
25% Downpayment: $ -/  75% Bank Loan: $ -
30 Years Bank Loan @ 1.2% Interest  
Monthly Installment: $ -

 *All Pricing Are Subjected to Developer Changes & Availability. Contact Us Now.

 

B4-PH
1528 Sqft

[/super_tab]
B2-PH
1561 Sqft

[/super_tab]
B3-PH
1572 Sqft

 

 

5 Bedroom (P)
5 Bedroom Premium
Pricing From:  FULLY SOLD
Type: C1 (5 Bedroom Premium)   Size: 1432 Sqft / 133 Sqm
25% Downpayment: $ -/  75% Bank Loan: $ -
30 Years Bank Loan @ 1.2% Interest  
Monthly Installment: $ -

 *All Pricing Are Subjected to Developer Changes & Availability. Contact Us Now.

 

C1
1432 Sqft

C2
1507 Sqft

C1-PH
1668 Sqft

C2-PH
1701 Sqft

C2-P3
1561 Sqft

 

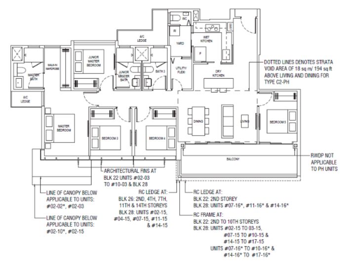
5 Bedroom Penthouse (P)
5 Bedroom Premium Penthouse
Pricing From:  FULLY SOLD
Type: C1-PH (5 Bedroom Premium Penthouse)   Size: 1668 Sqft / 155 Sqm
25% Downpayment: $ -/  75% Bank Loan: $ -
30 Years Bank Loan @ 1.2% Interest  
Monthly Installment: $ -

 *All Pricing Are Subjected to Developer Changes & Availability. Contact Us Now.

 

C1-PH
1668 Sqft

[/super_tab]
C2-PH
1701 Sqft

 

 

DIRECT DEVELOPER PRICE

100% Best Price Guarantee !

Early Bird Price !
Exclusive VVIP Preview !

FAST RESPONSE TIME

Immediate Viewing of All Multiples Showflat for Comparison

Free Cash-Flow & Timeline Planning
Lifetime After-sales Services Provided

BEST BUYERS' EXPERIENCE

Have A Ease of Mind Seamless Transition to Your Next New Home


Proven in-House Asset Capital Growth Strategists for Your Current to Future Property's Stages Direction

 

Call Us At +65-61007118

Showflat Viewing & Sales Enquiries
For Latest Pricing, Brochure & Viewing Arrangement.
Click for Viewing

 

 

 

Base Information

Bed
3
Bath
2

Parking Information

Parking
840 Sqft
Property headline
Punggol Digital District Growth

 NEARBY HOT-SELLING PROJECTS

Projects in the same area
1 +S 1 474 Sqft
【Serangoon】 Affinity at Serangoon (D19)
From:
Fully Sold Out
Sold Out
1 1 474 Sqft
【Bartley】 The Lilium (D19)
From:
$ 1,575,300
$2,243 PSF
2 + S 2 710 Sqft
【Bartley】 The Gazania (D19)
From:
$ 1,138,000
$2,373 PSF
1 1 463 Sqft
【Bartley】 Bartley Vue (D19)
From:
$ 1,438,000
$1,832 PSF
1 2 657 Sqft
The Hottest-Selling Featured Projects
【Sengkang】 Ola EC (D19)
From:
Fully Sold Out
Fully Sold Out
2 2 775 Sqft
【Canberra】 Parc Canberra EC (D27)
From:
$ 1,026,000
$1,083 PSF
3 2 947 Sqft

 Additional Options